Overcoming Challenging Ground Conditions for a Residential Extension

At Odysea Engineering Consultants Ltd, we believe that difficult ground conditions shouldn't stop you from building your ideal home extension. This recent project is a prime example of how advanced structural engineering can unlock the potential of a site that initially looked "unbuildable" using standard methods.

The Challenge: A Complex Subsurface

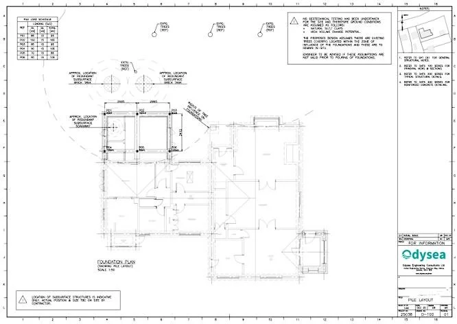
On the surface, the site appeared straightforward. However, our initial investigations and site analysis revealed a host of subterranean challenges that ruled out traditional trench-fill foundations:

  • Obstructions: The footprint of the extension was riddled with abandoned subsurface structures, including old soakaways and septic tanks.

  • Tree Root Protection: Nearby trees meant the soil was susceptible to volume change (shrinkage/heave), posing a significant subsidence risk.

  • Existing Infrastructure: Live drainage pipes crossed the site, requiring careful bridging to prevent damage.

Building strictly on top of this without a specialist design would have led to differential settlement and potential structural failure.

The Solution: Piled Ground Beam Foundations

To mitigate these risks, we moved away from traditional footings and designed a piled ground beam foundation. Why this approach?

  1. Minimised Disruption: Piles transfer the load of the new extension deep into the competent soil, bypassing the poor ground, old tanks, and tree root zones near the surface.

  2. Bridging Obstacles: We designed reinforced concrete ground beams to span across the piles. These beams act like bridges over the abandoned soakaways and drainage pipes, ensuring no weight is placed on the fragile infrastructure below.

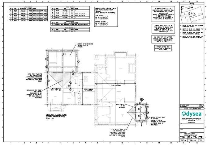
  3. Beam and Block Floor: We utilised a suspended beam and block floor system. This provides a robust ground floor solution that is quick to install and creates a necessary void beneath the floor to accommodate potential ground movement caused by the nearby trees.

Comprehensive Engineering Scope: From Ground to Roof

Our involvement didn't stop at the foundations. We acted as the structural designers for the entire shell, ensuring the superstructure was as robust as the groundworks. Our full structural package included:

  • Reinforced Concrete Detailing: We produced full detailing drawings and bar bending schedules for the ground beams, ensuring the steel fixers had exactly what they needed on site.

  • Superstructure Design: Complete engineering of masonry load-bearing walls, timber roof structure, and the design of custom steel lintels to support large openings.

  • Regulatory Compliance: We produced a comprehensive structural calculation pack for Building Control approval, ensuring all designs met UK Building Regulations (Part A).

  • Safety First: In accordance with the CDM Regulations 2015 and the new Building Safety Act, we produced a thorough Designer’s Risk Assessment to identify and mitigate construction risks early in the process.

The Result

By applying rigorous engineering principles, we turned a high-risk site into a safe, buildable project. The client received a complete structural drawing pack that allowed for accurate pricing by contractors and a smooth construction phase.

Does Your Home Extension or New Build Face an Engineering Challenge?

From bespoke extensions and internal rennovations to new build properties, we are here to help you find the most efficient path forward. Get in touch with our Norwich-based engineering consultancy today.

📧 Get in touch: info@odysea.engineer

📍 Location: Serving homeowners, contractors and builders across East Anglia.

Previous
Previous

Buying a Home in Norfolk? Don't Let Structural Uncertainty Derail Your Purchase

Next
Next

Industrial Engineering: Solving the "Ship in a Bottle" Retrofit Challenge