Structural Design of Pig Sphere Transport Frames to DNVGL-ST-E273

Our team was recently contracted to deliver the structural engineering design for a specialised Pig Sphere Transport Frame. Serving the offshore energy and subsea sectors across Great Yarmouth and Lowestoft, we provided a turnkey engineering solution to ensure the safe transit and lifting of this vital equipment.

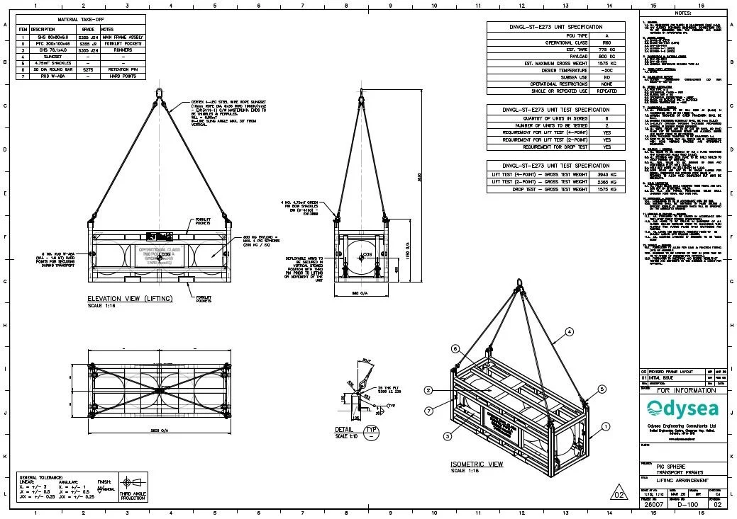
Technical Scope & Project Specifications

The bespoke frame was engineered specifically to house four individual pig spheres. To meet the operational demands of the project, the was designed structure around the following parameters:

  • Weight & Payload: Designed for a specific payload relating to the spheres.

  • Operational Classification: Engineered as a Portable Offshore Unit (POU) Type A, under Operational Class R60.

  • Lifting & Handling: The design incorporates a 4-leg steel wire rope slingset for overhead lifting , alongside integrated forklift pockets for yard and deck handling.

  • Specialised Securing: The frame features deployable arms that must be secured in a vertical stowed position via a retention pin prior to any lifting or movement of the unit, ensuring the payload remains fully secure during transit.

In-House Engineering & Design

We managed the entire design lifecycle in-house. Our comprehensive engineering scope included:

  • 3D Modeling: We coordinated with the fabricator and developed a detailed 3D model of the frame. This allowed us to verify the fitment of the pig spheres and optimise the structural layout for material efficiency and strength.

  • Structural Engineering Design: We conducted load calculations, pad eye design, and structural design checks to ensure the frame could withstand the dynamic forces of offshore lifting and sea-state transit.

  • General Arrangement Drawings: We produced detailed general arrangement drawings directly from our 3D model, ready for Client and 3rd party approval.

Regional Expertise

We have extensive experience designing these modules for various different project requirements. Whether your project demands the specialised POU criteria of DNVGL-ST-E273 or you require standard offshore containers engineered to the DNVGL-ST-E271 design codes, our local team is equipped to deliver safe, compliant, and highly optimised structural engineering solutions.

Need Engineering Support for Your Next Offshore Project?

From bespoke steel structures to subsea equipment frames, we take pride in delivering practical and efficient solutions for the most demanding environments. Get in touch with our Norwich-based team today to discuss how we can support your offshore operations.

📧 Email: info@odysea.engineer

📍 Visit us: Hethel Engineering Centre, Norwich, NR14 8FB

Next
Next

Commercial Fit-Out Excellence: Delegated Design of a Steel Staircase in Norwich